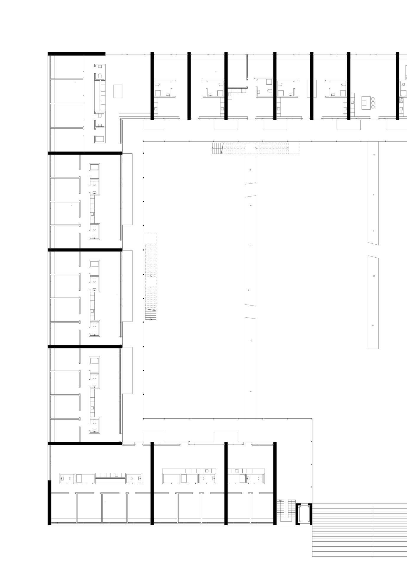
Neugestaltung Biberach Süd
Neugestaltung Biberach Süd
Aktuell
Projekte
Professuren
Forschung
Master
International
Architekturgespräche
Anmeldung fehlgeschlagen
Anmeldung temporär blockiert. Bitte später erneut versuchen.
Studierende
Teresa Kuchelmeister
Michelle Remensperger
Luca Füllemann
Pirmin Leon Richter
Projekt
Neugestaltung Biberach Süd
Studiengang
Architektur (B.A.)
Professur
Prof. M.Sc. Julia Siedle
Gäste
Jahr
2023