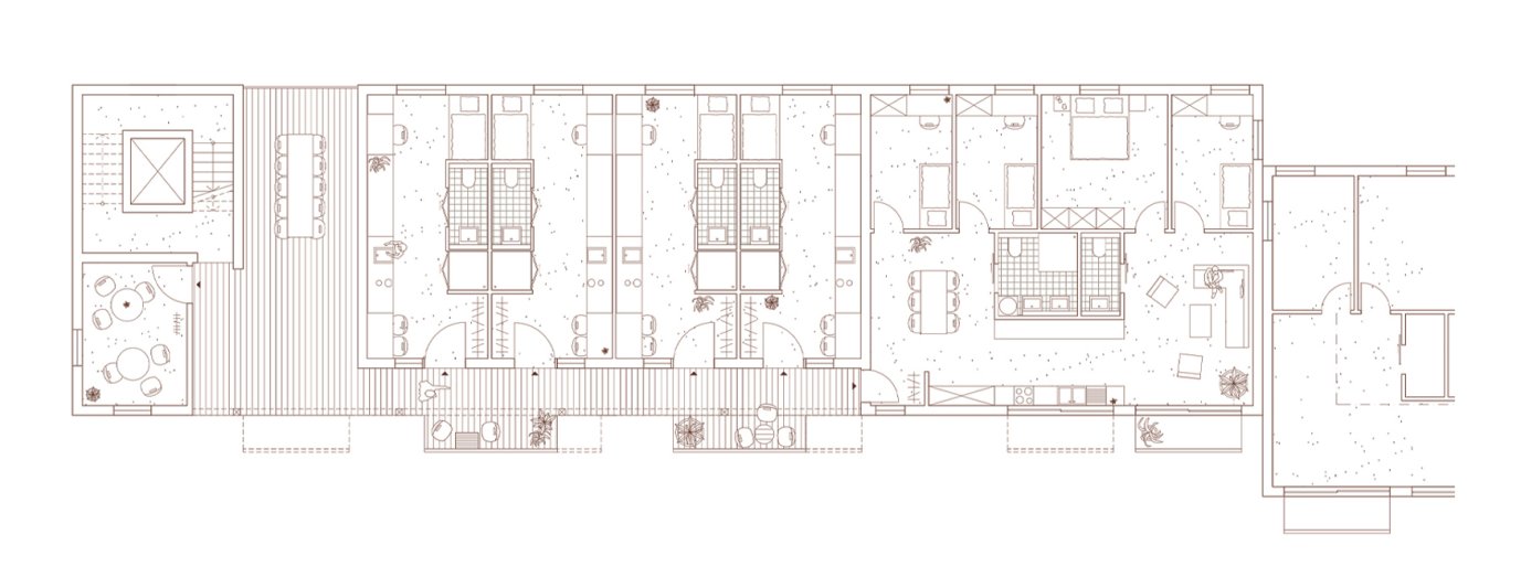
Block 10 Köln Bilderstöckchen
Block 10 Köln Bilderstöckchen
Aktuell
Projekte
Professuren
Forschung
Master
International
Architekturgespräche
Anmeldung fehlgeschlagen
Anmeldung temporär blockiert. Bitte später erneut versuchen.
Studierende
Emely Olivia Pfister
Pauline Emma Ann Kellerer
Projekt
Block 10 Köln Bilderstöckchen
Studiengang
Architektur (B.A.)
Professur
Prof. M.Sc. Julia Siedle
Gäste
Jahr
2023