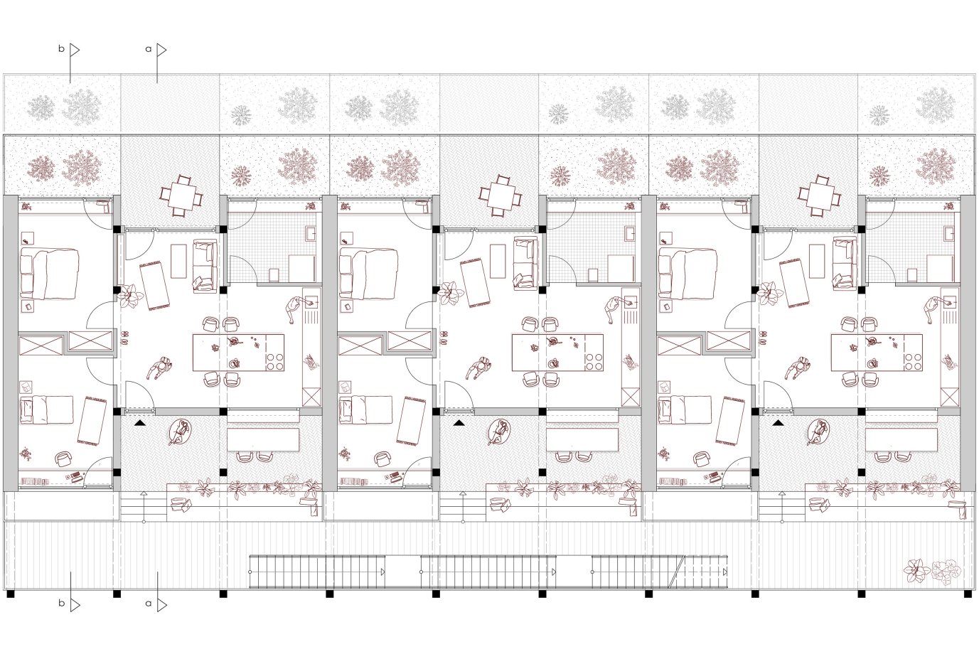
Komfort & Naturbaustoffe
Komfort & Naturbaustoffe
Aktuell
Projekte
Professuren
Forschung
Master
International
Architekturgespräche
Anmeldung fehlgeschlagen
Anmeldung temporär blockiert. Bitte später erneut versuchen.
Studierende
Petra Schlenk
Lisa-Marie Werner
Projekt
Komfort & Naturbaustoffe
Studiengang
Architektur (B.A.)
Professur
Dipl. Arch. ETH Corina Trunz
Gäste
Jahr
2024