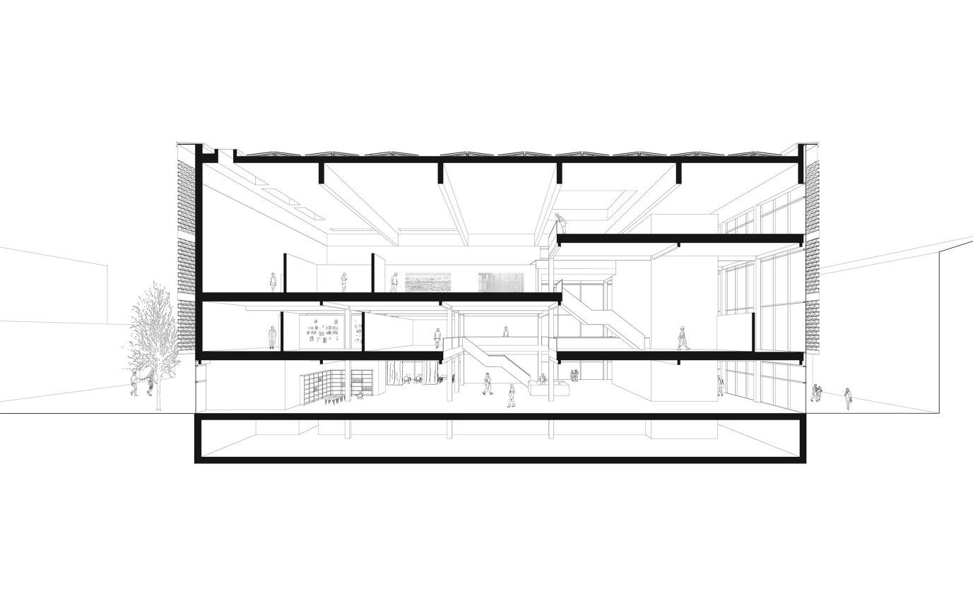
Dieses Projekt überzeugt durch seine räumlich komplexe Wegeführung durch das Gebäude. Drei frei stehende, tragende Kerne (in denen sich Erschließung und Technik befinden) gliedern die Flächen und ermöglichen unterschiedliche Raumzuschnitte über die 3 Geschosse. Vielfältige Ausstellungssituationen sind dadurch möglich.Eine zweite Hülle aus unterschiedlich gekanteten „Metallkacheln“ nehmen Bezug zum ursprünglich auf dem Grundstück befindlichen Hortenkaufhaus. Diese zweite Haut sorgt für unterschiedliche , der Nutzung angepasste Belichtungsverhältnisse, und geben dem Gebäude ein sehr eigenständiges Erscheinungsbild.




